
The client approached Peter Barry at the beginning of April with a lease that was approaching 80 years so time was of the essence. After looking into the options it was confirmed that a desktop service was both feasible and could be undertaken with no loss of accuracy versus an inspection.
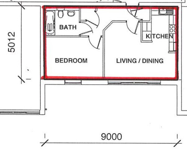
The most desirable piece of information is a floorplan and upon inspection of the lease there was a very accurate and measured plan:

One querk of the Leasehold Reform Act is that the property in question is to be valued in what is referred to as ‘Lease Maintained Condition’. Leases will require periodic painting and maintenance and whilst any improvements to the property are to be disregarded, it is accepted that kitchens and bathrooms are replaced periodically as to not be dated.
In reality this allows for valuations to be undertaken without the need to know the current condition of the property. The value and client simply need to be comfortable with this hypothetical condition.

A copy of the report was forwarded to the solicitor who served the S42 notice on the freeholder. The clock on the lease is now paused, allowing the client to get a 90 year extension at a peppercorn rent.